Save
Ask
Tour
Hide
$429,930
2 Days On Site
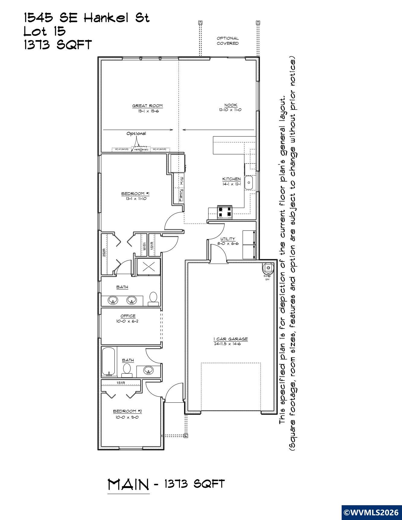
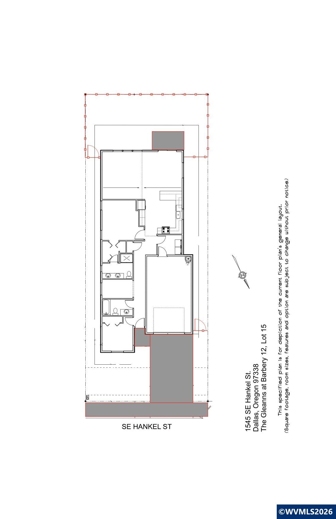
1545 SE Hankel StDallas, OR 97338
For Sale|Single Family Residence|Active
2
Beds
2
Total Baths
2
Full Baths
1,373
SqFt
$313
/SqFt
2026
Built
Subdivision:
Gleanns at Barberry 12
County:
Polk
Listing courtesy of LESLIE JAMES of PREMIERE PROPERTY GROUP, LLC - SOUTH SALEM (503) 386-4079
,



Save
Ask
Tour
Hide
Mortgage Calculator
Monthly Payment (Est.)
$1,962Calculator powered by Showcase IDX, a Constellation1 Company. Copyright ©2026 Information is deemed reliable but not guaranteed.
Well-appointed single-level home offering 2 bedrooms, 2 bathrooms, and a dedicated office. The open-concept design features vaulted ceilings, solid surface countertops, and an upgraded kitchen with built-in microwave/oven, cooktop, and hood. A sliding door opens to a spacious covered patio and fully fenced backyard. Currently under construction with opportunity to select interior finishes. Estimated completion 6/16/26.
Save
Ask
Tour
Hide
Listing Snapshot
Price
$429,930
Days On Site
2 Days
Bedrooms
2
Inside Area (SqFt)
1,373 sqft
Total Baths
2
Full Baths
2
Partial Baths
N/A
Lot Size
0.09 Acres
Year Built
2026
MLS® Number
836538
Status
Active
Property Tax
N/A
HOA/Condo/Coop Fees
N/A
Sq Ft Source
N/A
Friends & Family
Recent Activity
| 2 days ago | Listing updated with changes from the MLS® | |
| 2 days ago | Listing first seen on site |
General Features
Acres
0.09
Attached Garage
Yes
Garage
Yes
Garage Spaces
1
Home Warranty
Yes
Parking
Attached
Property Condition
New Construction
Property Sub Type
Single Family Residence
Sewer
Public Sewer
Style
1 Story
Water Source
Public
Interior Features
Appliances
DishwasherGas RangeMicrowaveDisposal
Cooling
Central Air
Flooring
CarpetVinyl
Heating
Forced Air
Save
Ask
Tour
Hide
Exterior Features
Construction Details
Fiber Cement
Fencing
Fenced
Patio And Porch
CoveredPatio
Roof
Composition
Schools
School District
Unknown
Elementary School
Lyle
Middle School
LaCreole
High School
Dallas
Listing courtesy of LESLIE JAMES of PREMIERE PROPERTY GROUP, LLC - SOUTH SALEM (503) 386-4079
Based on information from Willamette Valley Multiple Listing Service, which neither guarantees nor is in any way responsible for its accuracy. All data is provided ‘AS IS’ and with all faults. Data maintained by Willamette Valley Multiple Listing Service may not reflect all real estate activity in the market. Copyright 2026, Willamette Valley MLS.
Last checked: 2026-01-11 09:03 PM UTC
Based on information from Willamette Valley Multiple Listing Service, which neither guarantees nor is in any way responsible for its accuracy. All data is provided ‘AS IS’ and with all faults. Data maintained by Willamette Valley Multiple Listing Service may not reflect all real estate activity in the market. Copyright 2026, Willamette Valley MLS.
Last checked: 2026-01-11 09:03 PM UTC
Neighborhood & Commute
Source: Walkscore
Save
Ask
Tour
Hide


Did you know? You can invite friends and family to your search. They can join your search, rate and discuss listings with you.